Лента новостей
| 1 | 2 | |||||
| 3 | 4 | 5 | 6 | 7 | 8 | 9 |
| 10 | 11 | 12 | 13 | 14 | 15 | 16 |
| 17 | 18 | 19 | 20 | 21 | 22 | 23 |
| 24 | 25 | 26 | 27 | 28 | 29 | 30 |
| 1 | 2 | 3 | 4 | 5 | 6 | 7 |
| 8 | 9 | 10 | 11 | 12 | 13 | 14 |
| 15 | 16 | 17 | 18 | 19 | 20 | 21 |
| 22 | 23 | 24 | 25 | 26 | 27 | 28 |
| 29 | 30 | 31 |
| 1 | 2 | 3 | 4 | |||
| 5 | 6 | 7 | 8 | 9 | 10 | 11 |
| 12 | 13 | 14 | 15 | 16 | 17 | 18 |
| 19 | 20 | 21 | 22 | 23 | 24 | 25 |
| 26 | 27 | 28 | 29 | 30 | 31 |
22 декабря
В канун Нового года челябинцам подарят безлимитный трафик на всё
13:31Реклама
- Информация
- ПАО МегаФон
- ИНН
- 7812014560
- ID обявления:
- 2VfnxwKFp5o
В магнитогорском парке У Вечного огня появится новый туалет почти за 12 млн рублей
Именно столько власти города готовы заплатить за поставку, сборку и установку модульного объекта.

Напомним, горожане ранее не раз критиковали состояние единственного стационарного общественного туалета в парке У Вечного огня. Объект, устаревший и морально, и физически, вызывал недоумение у жителей города, хоть раз зашедших внутрь. Они жаловались, что в общественном туалете в буквальном смысле невозможно находиться из-за жуткой вони.

В конце августа стало известно, что здание туалета в парке У Вечного огня планируется снести. Был определён подрядчик, который на сегодняшний день уже завершил все демонтажные работы. Теперь на месте туалета осталась лишь заасфальтированная площадка. Судя по указателям, горожанам теперь доступны платный туалет в здании проката и бесплатный около игровой площадки в северной части парка.
Впрочем, уже до конца года на месте старого здания должен появиться новый туалет – об этом говорит одна из информационных листовок. Как стало известно, в настоящее время уже объявлен электронный аукцион по выбору подрядчика, который поставит, соберёт и установит в парке модульный объект. Начальная (максимальная) цена контракта составляет 11,9 млн рублей.
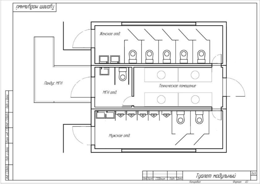
Согласно техзаданию, это будет модульный туалет, разделённый на четыре части. Помимо мужской и женской секций предусмотрены секции для маломобильных граждан и техническая. Благодаря отопительной системе воздушно-конвекторного типа пользоваться туалетом можно будет круглый год (при температуре от -40 до +50 градусов).

Мужская секция рассчитана на две кабинки с унитазами и пять писсуаров, женская – на пять кабинок с унитазами. Кроме того, в каждой секции будет минимум два умывальника. Отметим, что проектом предусмотрена кессонная система канализации.
Согласно документам электронного аукциона, новый туалет должен появиться в парке У Вечного огня до 20 декабря этого года. Победителя конкурса определят уже 14 октября.
Поделиться новостью
Если вы заметили ошибку в тексте, выделите ее и нажмите Ctrl+Enter
Смотрите также
Последние комментарии
Опаньки))))Че ж это деется...
Сегодня, 14:12Там по всему проспекту солнце может бить. Нужен строгий скоростной режим и средства регулирования движения. Можно так сделать? Можно! А зачем? - девиз современных управленцев
Сегодня, 10:58Я - мама одной из девочек, Логинова Светлана Данный пешеходный переход имеет особенности - дорога идет в гору, в сторону МГТУ, и когда солнце садится, оно очень слепит водителей Девочки видели эту машину, но так как она была далеко, продолжили движение понадеявшись что водитель остановится Но водитель, был ослеплен солнцем и их не видел, соответственно даже не тормозил, когда они оказались на второй полосе движения ‼️ЕСЛИ БЫ БЫЛ ЛЕЖАЧИЙ ПОЛИЦЕЙСКИЙ — водитель бы физически затормозил, и тогда моя дочь не получила бы столь тяжелые травмы 😢 ‼️ЕСЛИ БЫ БЫЛ СВЕТОФОР — дети бы не вышли на красный свет Мне люди писали, которые также на этом перекрестке попадали в ДТП из-за солнца, они НЕ увидели впереди остановившуюся машину, которая пропускала пешеходов, и въехали в авто
Сегодня, 02:48плохо что то глава на фото выглядит. Не болеет?
Сегодня, 02:43"Отметим, что победителя аукциона определят уже на следующей неделе – 24 декабря." опять кого то посодють(
Сегодня, 02:40да там сыночек-корзиночка чей-то... без вариантов. Такие мягкие обтекаемые формулировки
Вчера, 20:36Во мамашка, бухая бухая, а о ребёнке не забывает, отпрыск должен учиться!
Вчера, 19:33Пчёлы не кусают, а жалят.
Вчера, 13:36а я предлагаю уже поменять градоначальника, который (пусть и четырехполосную) дорогу в историческом центре города, где рядом крупный парк, куча детей и людей в возрасте называет ТРАССОЙ! "По его мнению, правильным было бы внести изменения в ПДД и сделать так, чтобы пешеход при любом ДТП был бы виноват." Это заявление адекватного человека? Градоначальника? Виктор Филиппович, ну поставьте Вы уже на его место другого человека!
Вчера, 13:20на редкость упорен .. в другом смысле. Доказать что-то , переубедить невозможно. Вот такой градоначальник , однако. Логика железная у товарища.
Вчера, 12:48